The Fabric Workshop
OUR PROCESS
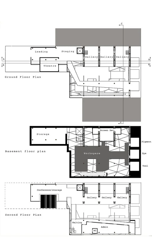
The project was to be a kind of urban stitch, in filling a void within the existing landscape. This space houses a museum space, classrooms, offices and an auditorium.
ABOUT
Urban Gallery
STATUS
Research
LOCATION
Philadelphia, PA
